|
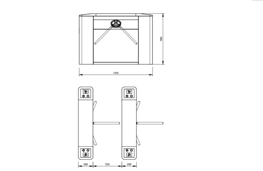
三棍闸IMW-ZKT23-105功能介绍 1. 故障自检:具有故障自检和数码屏提示功能,方便用户维护及使用。 2. 自动落杆及上杆:断电自动落杆,通电自动上杆。 3. 动感提示:接受合法通行信号时,闸杆自动旋转约5度,轻触即柔和旋转至下一复位点后停止。 4. 自动矫正:当受外力影响,闸杆偏位不在水平位置时,系统自动进行矫正回归水平位。 5. 刷卡窗:独特刷卡窗设计,增加刷卡通行提示。 6. 灯光指示:个性化高亮度动感通行指示,指引通行。 7. 快速无磨损:电动助力,机械零磨损。 8. 柔顺无噪音:运行柔顺平稳,噪音小。 9. 防撞缓冲功能:非法通行或冲闸时,闸杆自动启动制动力阻挡且发出报警,实现人性化防伤害。当外力消失后则自动复位。 10. 防尾随功能:每过一人转动120度,如有人尾随,闸机自动启动反推力阻挡并报警。 11. 采用光学工作原理,对输入控制信号没有延时要求,绝对避免刷一卡过几人的现象; 12. 防逆转功能:通行过程中发生反转,闸杆即自动启动制动力阻挡且发出报警,待反转外力消失后则自动恢复通行。 13. 自动复位功能:每转动120度即自动复位,或在规定的时间内(延时可调)未通行时,系统将自动取消此次通行的权限。 14. 报警提示功能:非法通行或冲闸时,自动发出报警提示。 15. 记忆功能:精准的信号记忆,连续多次接收合法信号时,检测最后一人通过后自动复位,大大提高了通行速度。(此功能可拨码选择) 16. 具有统一、标准的对外电气接口,可与各种读写设备相挂接,接收继电器开关信号工作,便于系统集成; 17. 具有多种工作模式可供选择,可外接任何控制设备输出的控制信号或按钮或遥控,实现单双向控制通行。即可双向限制通行,也可单向限制通行,机工作模式可通过控制板按钮进行设定;也可任意设定单、双向自由通行。 18. 外接按钮或遥控可实现不断电远距离控制落杆、上杆功能,以满足用户的特殊需求及消防安全需求(需扩展)。 19. 消防输入:可与消防报警信号连接,实现不断电落杆常开。 规格参数 n 外壳材料: SUS304#不锈钢 n 外壳加工工艺:采用激光、折弯、切割、焊接、拉丝、抛光、打磨等工艺。 n 规格尺寸:1400*280*980mm n 闸杆长/粗:510(mm)/¢38不锈钢管。 n 闸杆转向:单向、双向 n 标准输入接口:继电器开关信号 n 电机: 40W无刷伺服电机 能实现2倍电流过载。 n 使用寿命:不低于600W次。 n 通行速度:≥30-40人/分钟。 n 适应温度:-20℃ ~ 70℃。(-20℃以下考虑增加温控系统) n 适应湿度:5%— 95% n 工作环境:室内、室外。 产品尺寸
|

